56237
Wirscheid
Gemütliches & bezahlbares Fachwerkhaus mit Seele !
69.000 €
4
1
Hallo, ich bin ein bezauberndes Fachwerkhaus mit Seele in der idyllischen Ortschaft Wirscheid im Westerwald.
Meine Geschichte beginnt vor 1945, als ich mit viel Liebe zum Detail aus Fachwerk, Bruchstein und Bims erbaut wurde. Heute stehe ich hier auf meinem 148 m² großen Grundstück – freistehend, charaktervoll und voller Potenzial. Mit meinen rund 75 m² Wohnfläche bin ich perfekt für Singles oder Paare, die den Traum vom Eigenheim verwirklichen möchten, ohne sich finanziell zu übernehmen.
Was macht mich besonders? Ich bin authentisch! Meine Fachwerkoptik verleiht mir rustikalen Charme, während meine Stirnseite aus massivem Bruchstein Beständigkeit ausstrahlt. Mein Satteldach mit Betonpfannen schützt mich zuverlässig vor Wind und Wetter. Durch meine doppelverglasten Holzfenster fällt angenehmes Tageslicht in meine Räume.
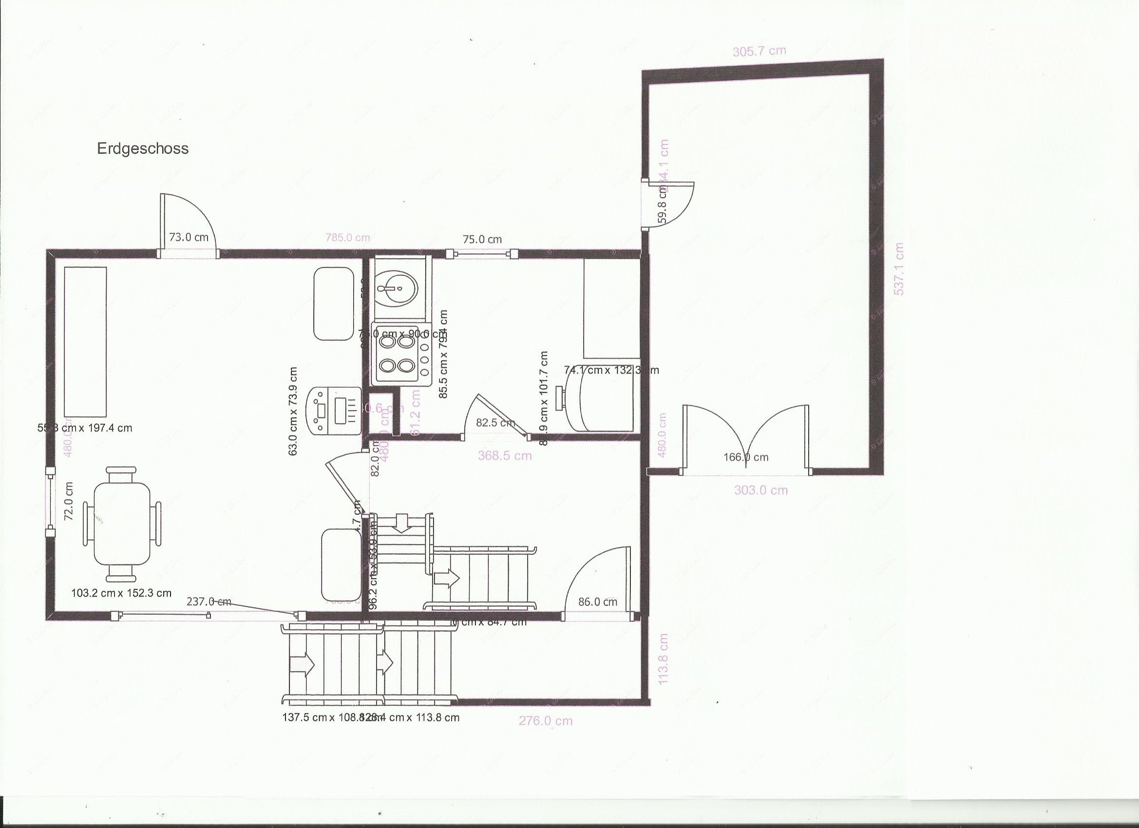
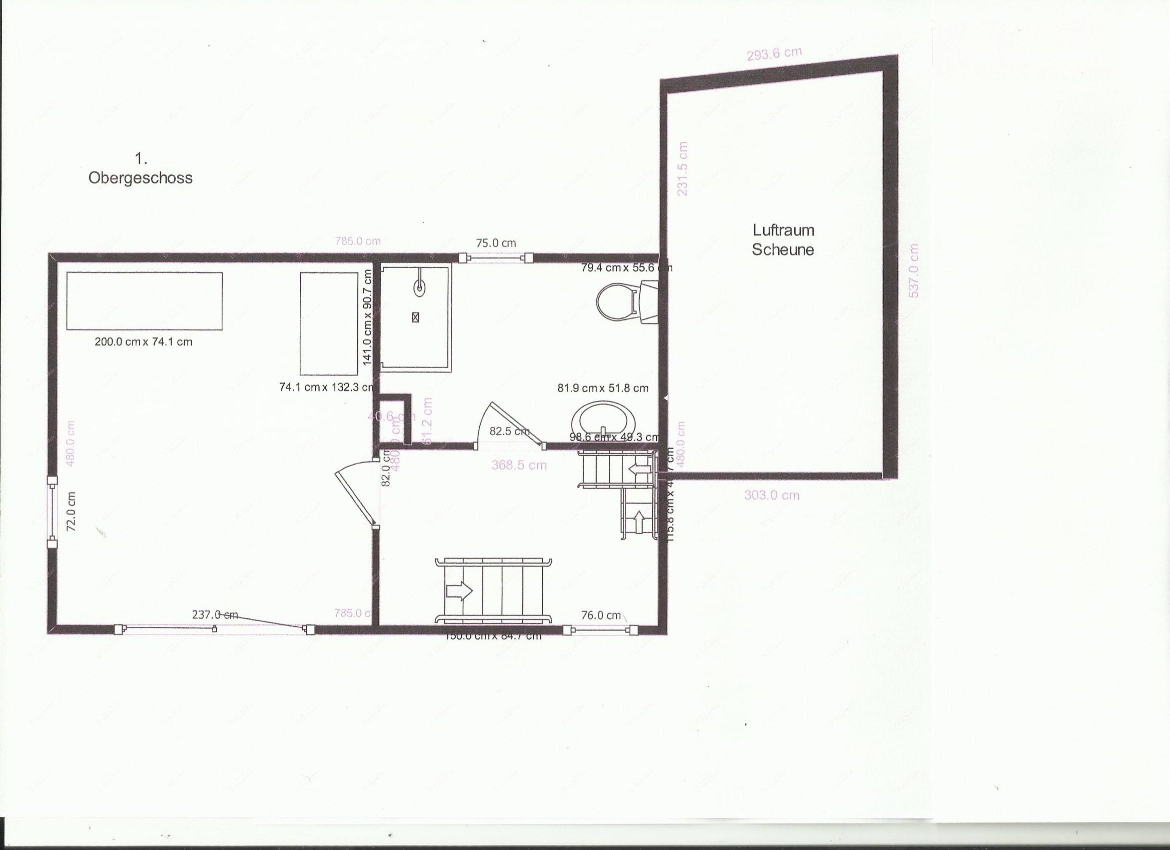
Mein Innenleben: Ich verfüge über ein helles Tageslichtbad im Obergeschoss, gemütliche Wohnräume mit Kork-, Fliesen- und Teppichböden sowie einen nostalgischen Kaminofen, der an kalten Winterabenden für wohlige Wärme sorgt. Meine Wände sind teilweise von innen gedämmt, und ich besitze eine 3-adrige Elektrik sowie Durchlauferhitzer für Warmwasser.
Besondere Extras: Neben meinem Haupthaus biete ich dir praktische Nebengebäude – eine Scheune, einen Carport und einen Lagerschuppen. Zwei meiner Kellerbereiche sind sogar von außen begehbar – ideal als zusätzlicher Stauraum!
Ich gebe zu: Ich bin kein Neubau und benötige weitere Sanierungsarbeiten. Aber genau das macht mich erschwinglich und zur perfekten Gelegenheit für Wohnungsbeginner oder alle, die endlich aus der Miete raus möchten! Mit handwerklichem Geschick und eigenen Ideen kannst du aus mir dein persönliches Traumhaus machen.
Meine Lage? Wirscheid im Westerwald – ruhig, naturverbunden und mit guter Anbindung. Hier genießt du Landleben pur, ohne auf Infrastruktur verzichten zu müssen.
Ich freue mich darauf, dich kennenzulernen und gemeinsam mit dir eine neue Zukunft zu beginnen. Bezahlbar, charmant, einzigartig – das bin ich!
PS: Der Energieausweis ist beauftragt
Freistehendes Fachwerkhaus, teilunterkellert
Denkmalschutz: nein
Baujahr: unbekannt, jedoch vor 1945
Wohnfläche: ca. 75m²
Grundstücksgröße: 148m²
Ausstattung: einfach
Bauweise: Bruch-/ Bimssteinkeller, Fachwerk, Stirnseite Bruchstein
Dach: Satteldach mit Betonpfanneneindeckung
Dämmung: Wände teilweise von innen
Bodenbeläge: Fliesen, Kork, Teppich
Elektrik: 3-adrig
Fenster: doppelverglast aus Holz oder Alukern mit Holzverkleidung
Heizung: Wohnzimmer früher Nachtspeicherofen, Rest Elektrowandheizung
Warmwasser: über Durchlauferhitzer
Kaminofen: Ja (alt)
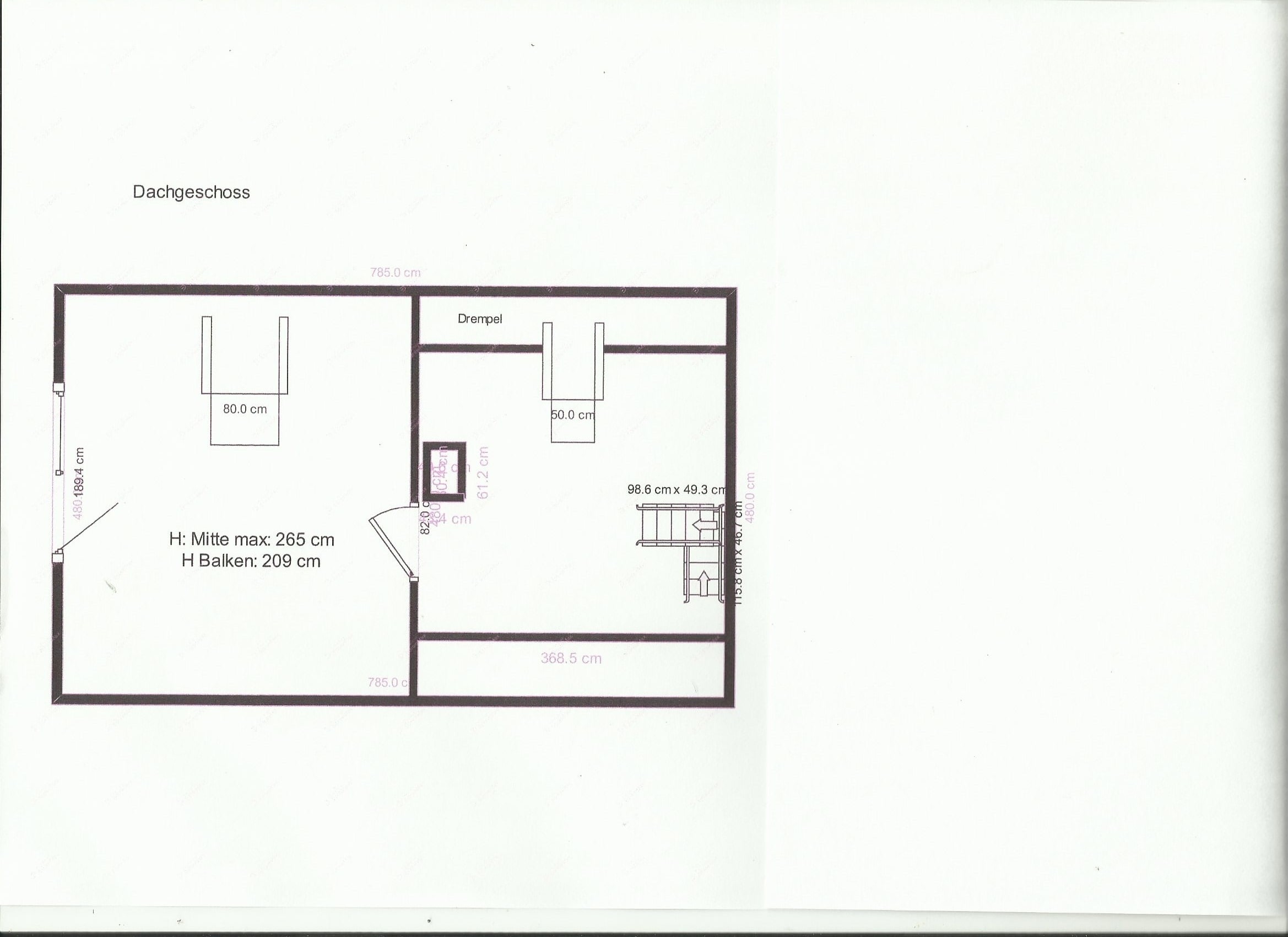
Geschossdecken: Holzbalken
Bäder: 1x Tageslichtbad OG
Treppe: massiv Stein Keller ; Holztreppe EG-OG ; Stahl-/Holztreppe zum DG
Zustand: teilsaniert, aber weitere Sanierungsarbeiten erforderlich
Zusätzlich:
2x Kellerbereiche von außen begehbar
1x Scheune
1x Carport
1xLagerschuppen
Energieausweis ist beauftragt
Diese Immobilie liegt zentral in der Gemeinde 56237 Wirscheid im Westerwald. Die Ortschaft mit ca. 356 Einwohnern liegt etwa 6 km südlich von Ransbach-Baumbach und 20 km nordöstlich von Montabaur. Die Umgebung ist geprägt von sanften Hügeln und Wäldern, die zum Wandern und Radfahren einladen.
Ransbach-Baumbach ist die nächstgrößere größere Stadt mit eigener A3 Autobahnanbindung, gut ausgebauter Infrastruktur sowie vielen Einkaufsmöglichkeiten und liegt etwa 6 km nordwestlich von Wirscheid. Montabaur, die Kreisstadt des Westerwaldkreises, ist etwa 20 km südwestlich von Wirscheid entfernt und hat einen ICE-Bahnhof, der eine schnelle Verbindung nach Köln und Frankfurt ermöglicht. Die Fahrtzeit beträgt etwa 30 Minuten nach Koblenz und eine Stunde nach Köln oder Frankfurt.
Wirscheid bietet eine schöne Wohnlage für alle, die ein ruhiges und naturverbundenes Leben suchen und dennoch eine gute Anbindung an größere Städte wünschen.
Zögern Sie nicht und fordern Sie bei uns ausführlichere Informationen mit weiteren Unterlagen an und überzeugen Sie sich unverbindlich von den Vorzügen dieser Immobilie.
Nutzen Sie auch unsere vielfältigen Angebote auf unserer Website wie z.B. den Finanzierungsrechner mit dem Sie in nur 3 Minuten Finanzierungsangebote von über 100 Finanzinstituten und entsprechende individuelle Beratungsangebote durch fachkompetente Experten erhalten. Mit unserem Budgetrechner errechnen Sie in kürzester Zeit Ihr mögliches Finanzierungsbudget.
Laden Sie sich kostenfrei unsere umfangreichen Infobroschüren zu Themen wie Immobilienverkauf, Immobilien im Alter, Scheidung oder Erbe herunter oder nutzen Sie unsere zahlreichen Checklisten + Vorlagen sowie unser Käuferportal.
Profitieren Sie von umfassendster Beratung, unserer nach DIN EN 15733 zertifizierten Maklerleistung und erleben Sie unser Plus an Service.
Alle Objekt-Angaben sind ohne Gewähr und basieren ausschließlich auf Informationen, die uns vom Auftraggeber und/oder Dritten zur Verfügung gestellt wurden. Wir übernehmen trotz sorgfältiger Prüfung der Objektangaben keine Haftung für die Vollständigkeit, Aktualität und Richtigkeit dieser Angaben.
Hinweis:
Grundrisse können im Detail von der Realität abweichen und dienen der Veranschaulichung der räumlichen Aufteilung.
Sie können uns jederzeit, gerne auch abends oder am Wochenende telefonisch, per E-Mail oder über das Kontaktformular auf unserer sehr informativen Website kontaktieren.
Dort können Sie auch online direkt einen persönlichen Gesprächstermin buchen („Kontakt/Terminbuchung“).
Weitere Informationen finden Sie unter:
www.schlotterimmobilienplus.de
Telefon: 0151/68466385
Email: 1[at]schlotterimmobilienplus.de
Facebook: www.facebook.com/schlotterimmo
Teilen auf
Objektangaben
Objektnummer:2025 -0063
Wohnfläche:75,00 m²
Grundstücksfläche:148,00 m²
Zimmer:3,5
Schlafzimmer:1,0
Badezimmer:1,0
Kosten
Kaufpreis:69.000 €
Zzgl. MwSt.:nein
Provisionspflichtig:Ja
Provision: 3,57 %
Provisionshinweis: Die Käufer-Provision beträgt 3,57 % vom Kaufpreis inkl. MwSt.
Die Käufer-Provision ist verdient und fällig mit notarieller Beurkundung.
Der Immobilienmakler hat einen provisionspflichtigen Maklervertrag in gleicher Höhe mit dem Verkäufer abgeschlossen und weist auf die damit einhergehende Doppeltätigkeit hin.
Ausstattung
Zustand:Sanierungsbedürftig
Erschliessung:Voll erschlossen
Kategorie:Standard
Bad:Dusche, Fenster
Boden:Fliesen, Teppich, Linoleum
Unterkellert:Teilweise
Bauweise:Holz
- A+
- A
- B
- C
- D
- E
- F
- G
- H
0255075100125150175200225250
0,00 kWh/(m²*a)
Ihre Anfrage
* Pflichtfelder






























